写真管理ソフト

耐震改修では改修内容に関しての監理上の資料作成は、一般的な新築や増改築よりも厳密なものになります。理由としては2つあって、

 1.耐震性能を担保するための設計と施工であること
 2.耐震改修工事に関する補助金を受けていること

です。まず、1については、当初設計通りの耐力壁の仕様として確実に施工させているか?の監理が必要です。また同時に、耐震改修計画で「想定」している既存建物の構造状況であるか、の確認結果資料としての位置付けも大きいです。

いずれにしても、「設計監理」の側面では担当した「耐震診断士」の役割は重要です。既存状況が想定内でなかった場合には当然のように追加工事や是正工事が必要になりますし、単に何かを追加すればよいだけでなく、構造自体の見直しまで発生する可能性が高いわけですし、また、改修現場は新築と違ってそれほど工程的な余裕はありませんから、即断即決できるスキルも必要になってきます。

まぁ、そういうことがあるので、耐震改修について診断や補強プラン作成はともかく、工事という部分までを請負う業者が少ないというのは以前のブログテーマでもご紹介した通りだと思います。

さて、設計監理については、現場の確認作業や、「おもったんとちゃう」であれば変更を指示することでクリアできます。実はこれらは比較的仕事としては負担は少ないというのが個人的な感想ですw ですが、「監理報告書」として資料を作り、かつ、補助金申請上の審査を受けるということまで考えますと、日常的な作業の現場写真管理は重要です。

弊社では耐震改修工事に関する管理だけではなく、現場の写真のデータ管理には、福井コンピュータの

「TREND写真管理」

というものを使っています。実はこの写真管理ソフトは、福井コンピュータHDが展開している建築、土木、測量といった建設業全般に対する写真管理ソフトとして販売されているもので、「建築専用」というわけではありません。

実は以前、福井コンピュータでは建築系ということで「Do Photo」というソフトがあったのですが、設計監理として使う分には大量の写真を撮影しますので、それらの整理や見出し等の情報書き入れなども含めた編集機能が必要で、かつ、軽快に動作する必要があったので「TREND写真管理」にしています。

実際の写真管理はこんな感じです。

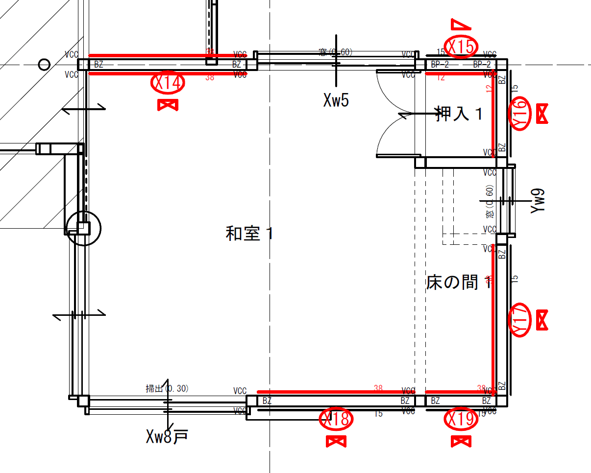
左ペインのツリーは、写真管理の階層を表していて、ここは自由に設定ができます。耐震改修工事に関する場合に限定すると、最終的には「壁単位」での写真管理が必要になります。

ですが、改修する壁が連続している場合には、ツリーの構造を工夫する必要が出てくるわけです。例えば、画像でいうX18とX19ですが、X18の右の柱はX19の左の柱でもあるわけです。柱の頭と脚につけるプレートはこのX18とX19両方にかかってくるので、写真管理も連続的に管理しないとダメってわけですw

写真として監理上必要なのは、

  • 壊す前の状況
  • 壊した直後の状況
  • 柱の金物状況
  • 筋交いや面材などの施工状況(筋交いであれば金物設置)
  • 復旧工事としての下地工事
  • 復旧工事としての仕上げ工事

ということになりますので、一つの壁の改修に必要な写真の枚数としては、12~13枚程度は必要になってきます。従って改修箇所が増えればもちろん枚数は増えていきますし、施工内容によっては1か所20枚くらいを要する場合もあります。

まぁこれらは、どうやって監理するか?という部分なので、監理者が記録するっていう部分ではもう少し少なくても問題はないかもしれません。ですが、補助金申請としてはそうはいきません。

補助金申請の場合には、補助金申請で提示した「数量」、「内容」、「仕様」が、数量表と施工した証明でもある写真と一致する必要があります。柱にプレートを打つことは「当たり前」のことですが、柱頭柱脚金物が数量表上100枚あるとすれば、100枚の写真が必要なわけです。この部分は所管の自治体窓口での判断や対応で変わりますが、自治体窓口では問題なくとも、その後の「会計検査」で所管の自治体から問い合わせがないとは限りません。

従って写真管理ソフトを運用する場合には、図面、数量表の根拠となるだけの写真管理を行い、台帳として出力して提出する必要がありますので、仕分けや見出し付けが自由にでき、かつ、施工場所などの区分けで振り分けていくことができないと後々たいへんな思いをすることになります。

おそらく耐震改修工事で最も重労働な部分はこの写真管理であるといっても過言ではないでしょうw



タイトルとURLをコピーしました